Skip to main content
Projekt
Ambassader
Flerbostadshus
Interiör
Kulturarv
Offentligt
Övrigt
Pressklipp
Privatbostäder
Tävlingar
Utbildning
Kontoret
Kontakt
Projekt
Kontoret
Kontakt
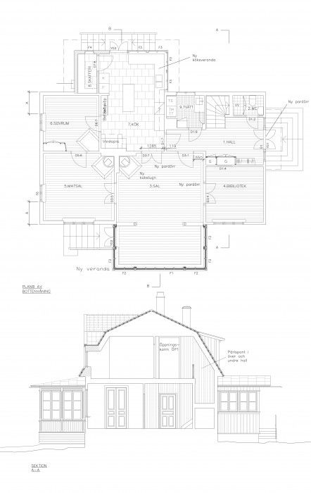
Fritidshus i skärgården
Tillbyggnad och renovering
År
2012
Plats
Värmdö kommun
Beställare
Privat
Ansvarig arkitekt
Jacob Hidemark